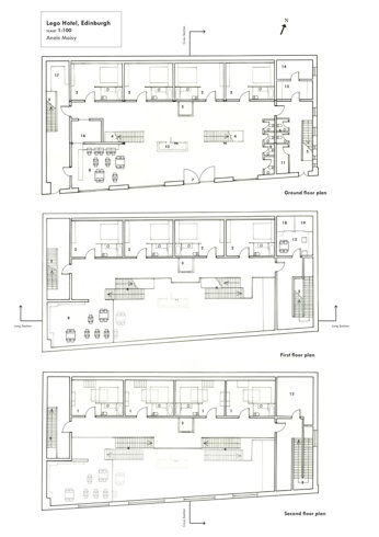
Once upon a time, it was the norm to convert industrial spaces into Arts Spaces. The Fruitmarket was just that –a Fruit Market. The glut of such spaces (and the commercial failure of some) in recent years has raised doubts about this policy. In this project I had to convert this art gallery into an hotel.

This poses particular problems. Art galleries are large, single, generally top-lit spaces, where an hotel  is largely composed of small single spaces – bedrooms, bar and toilets. In addition, Art Galleries are very public, visible spaces. A stay in an hotel is quite a different experience. Areas like the bar are quite public whereas the bedroom areas are extremely private. The design of these is influenced by the price bracket that the hotel places itself.


I had to design the hotel for a well known brand, by chance for me it was Lego. How I perceive this brand influenced deeply my design: playful, family, colors, bricks, construction...

I began by looking at this project in terms of an individual bedroom for a family. In the mezzanine is the parents bed and downstairs a space for the children: a bed and a space to play under the stairs.

The concept of the Lego Hotel is base of the Lego bricks: each room have a Lego color, the design is playful, but stay simple as the bricks.

Then I had to design the all hotel. From the outside, the bedrooms look like a Lego bricks wall, and plunge the customers into the Lego universe straightaway.

LEGO HOTEL

Building and room design

2nd year Interior Design ECA

ECA, Edinburgh, Scotland 2012

The rooms

The hotel